Water Environment Services
WES-SOLVE cleanups target county’s natural areas for eighth straight year
Public Hearing - 2024 SDC Methodology Update and Proposed Fees
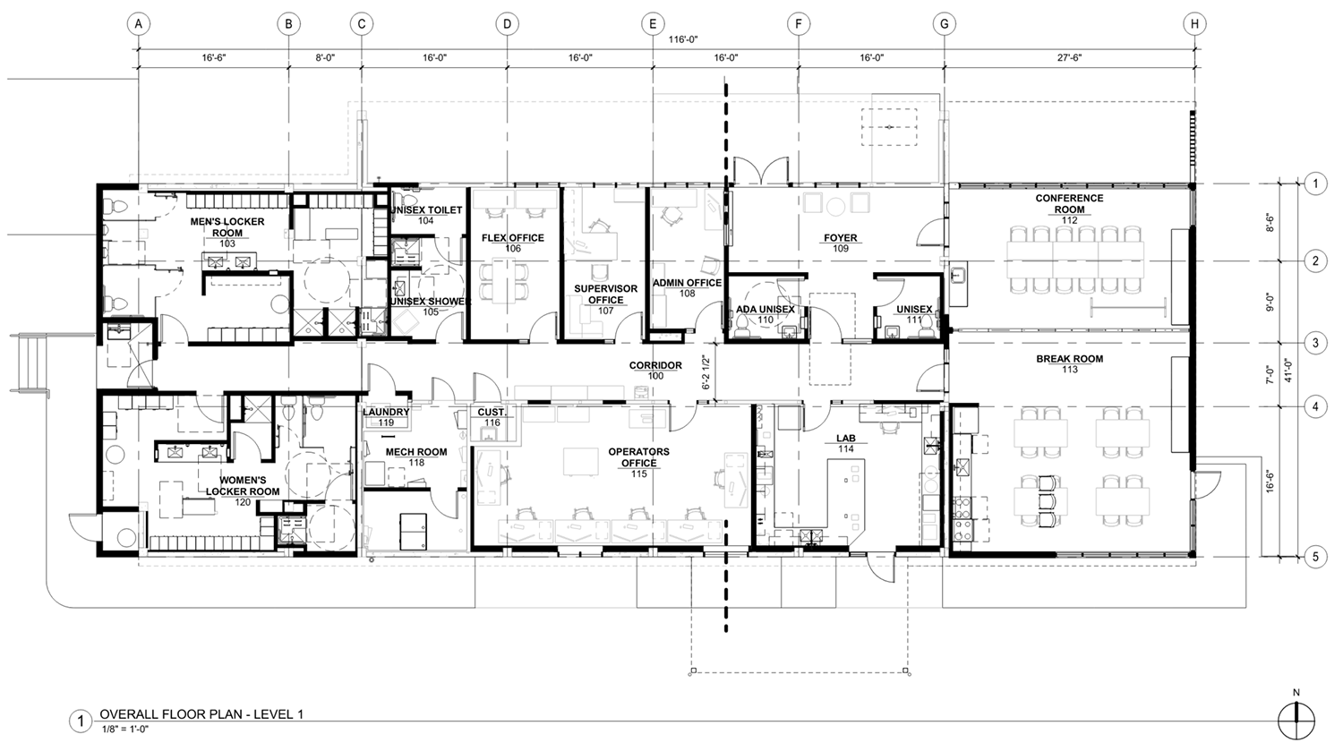
Kellogg Creek Water Resource Recovery Facility Administration Building Remodel
Opened in 1974, the Kellogg Creek Water Resource Recovery Facility (WRRF) plays an important role in serving the Clackamas Water Environment Services (WES) community. It treats wastewater from Happy Valley, Johnson City, Milwaukie, and unincorporated areas of Clackamas County. Each day, the facility cleans nearly 7 million gallons of wastewater before releasing it into the Willamette River.
After 50 years of service, it's time for much-needed updates to the facility's administration building to better serve current and future needs. The project will also move some staff facilities into the administration building, which will create space inside the main plant for future improvements to wastewater treatment.
Construction is scheduled to begin in the summer of 2026, with work expected to last about 12 months.
Planned upgrades include:
- Moving locker rooms and the employee lunchroom to the administration building
- Providing adequate locker room facilities for all staff
- Adding all-gender restrooms
- Creating a community room with space for up to 25 people
- Reconfiguring office and lab spaces to support modern operations
- Updating fire, security, and network systems to modern standards
- Updating facilities to meet current accessibility standards
In recognition of its excellence in plant operations and permit compliance, the Kellogg Creek WRRF received the Peak Performance Awards from the National Association of Clean Water Agencies (NACWA) in 2021, 2022, and 2023.
IT2 Pump Station Expansion and 30-inch Force Main Project
Clackamas Water Environment Services (WES) owns and operates the sewer system that carries wastewater from homes and businesses in Happy Valley and nearby areas to our treatment facilities. To ensure we can continue providing safe and reliable sewer service in the future, we need to make improvements and upgrades to the Intertie 2 Pump Station.
The Intertie 2 Pump Station diverts wastewater from one treatment plant, the Kellogg Creek Water Resource Recovery Facility, to another, the Tri-City Water Resource Recovery Facility. The pump station was built to be expanded as the area grows. It is now almost at full capacity. This project will add a new pump and new pipes to connect to a new 30-inch force main.
Currently, the pump station moves wastewater using a 20-inch-diameter pipe. Building the new 30-inch force main will help pump more wastewater and increase the station’s capacity. Parts of the 30-inch pipe were built in 2012, and this project will finish the construction of the remaining sections.
Traffic disruption
From Nov. 17 through early January 2026, Johnson Road will be closed to thru traffic between SE Lake Rd and SE Thiessen Rd to install a new sewer line. Homes and businesses will remain accessible during construction, however detours around the construction may be necessary.
Your patience and cooperation are greatly appreciated as we work to complete this important sewer improvement.
Dates: Monday, Nov. 17, 2025 to early January 2026
Work Hours: Monday – Friday, 7:00 a.m. to 5:00 p.m.
Local Access: Homes and businesses located inside the closure area will still be accessible. Please expect short delays and follow directions from construction crews.
Detour: All thru traffic must follow the marked detour using SE Lake Rd, SE Webster Rd, and SE Thiessen Rd.
Evenings & Weekends: The road will be OPEN to all traffic outside of work hours (after 5 PM on weekdays and all day Saturday and Sunday).
What is a pump station?
Pump stations are used to help transport fluids from one point to another. They play an integral role in sanitary sewer collection systems. Our sewer system relies on pump stations, or lift stations, to push wastewater from point A to point B, especially in cases where gravity can’t move flow from a low-lying area to higher ground.
How pump stations work
What is a force main?
A force main is a pressurized sanitary sewer pipe. Force mains are used where gravity is insufficient to move wastewater through a sewer line.
Schedule
- All dates are estimates and subject to change
- Businesses will be open during construction
- Construction hours are 7 a.m. - 5 p.m. Monday-Friday
- Please refer to the map for segment locations
Segment A Schedule and Impact
- 1 Lane of Traffic
- Red: October 21 - Early December
Segment B Schedule and Impact
- Road Closure
- Green Line: November 17 - Early January 2026
- Detour Route: Green Dotted Line
- Red Line: Early January 2026 – Early February 2026
- Detour Route: Red Dotted Line
- Purple Line: Early February 2026 – Early March 2026
- Detour Route: Purple Dotted Line
Segment C Schedule and Impact
- Traffic Delays
- Orange Line: First quarter of 2026
Segment D Schedule and Impact
- Road Closure
- Red Line: Spring 2026
- Detour Route: Red Dotted Line
Segment E Schedule and Impact
- 1 Lane Traffic
- Orange Line: Early December – Early January
Segment F Schedule and Impact
- Local and Park Access Only
- Red: Spring 2026
- Local Access Only
- Green: Spring 2026
Project Financing
The total cost of the project is estimated at $23,650,000.
The IT2 Pump Station Expansion and 30-inch Force Main project is part of WES’ Capital Improvement Plan. As such, it is a planned expense that has been included in budget discussions and rate studies. We are committed to keeping rates affordable while meeting the needs of growing communities and replacing old infrastructure.
What will the impact be during construction?
There will be traffic impacts along SE Johnson Rd and SE McKinley Ave in Clackamas, SE Cason Rd and SE 82nd Drive in Gladstone, and Washington St. in Oregon City. We will share additional details of the construction impacts as more information becomes available.
Clean Water Exchange
We know Clackamas County is a special place to call home. Clean water keeps it that way.
As your wastewater services and stormwater management provider, Clackamas Water Environment Services (WES) wants to know what you value most when it comes to creating a clean water future for all. We will conduct the survey every 2 years. The next survey will be conducted in the spring of 2027.
Previous Survey Findings
During the Clean Water Exchange in 2025, respondents highlighted ensuring clean water availability in rivers and streams as their top priority.
They expressed a desire to learn more about Capital Projects and Resource Recovery. You can easily find information about these projects on our capital project page. We also created a visual blog to provide updates on the Tri-City Outfall Project.
Many respondents showed interest in getting involved through volunteer events, leading us to establish a dedicated Community Events page.
Respondents also shared their preferred communication methods: email, newsletters, and social media. As a result, we have enhanced our quarterly e-newsletter to keep you informed. Sign up to stay in touch!
Stay in Touch
Customer Service
503-742-4567
wescustomerservice@clackamas.us
Translate





